
Casas Fialho
CONFORTO, QUALIDADE E MODERNIDADE EM UM SÓ LUGAR
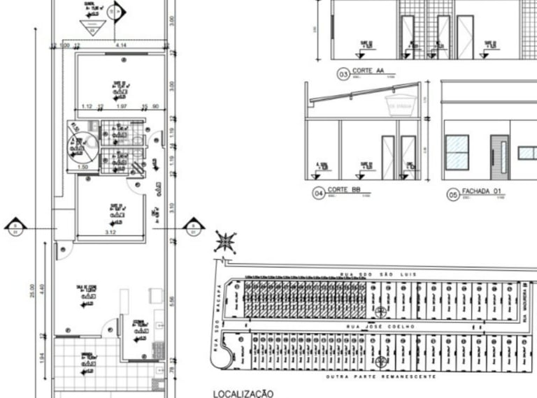
Projeto moderno
O cenário ideal para criar memórias inesquecíveis!
Tranquilidade e segurança, a poucos minutos de Fortaleza. Comércio, escolas e serviços essenciais próximos.
Fácil acesso às principais vias da região. Infraestrutura planejada para seu bem-estar.
Jardim
Suíte Master / Suíte Reversível
Área Gourmet
Banheiros
Sala de Estar
Årea de serviço
Cozinha Americana






Tranquilidade ao seu alcance
Com design moderno e espaços bem planejados, ele proporciona uma experiência de moradia exclusiva e funcional. Ideal para quem busca qualidade de vida.






83m²


02 SUÍTES


2 vagas


ÁREA GOUMERT
Acabamento de qualidade
83m²
2 Suítes
2 vagas
Área gourmet
Galeria
Acabamento diferenciado | Possibilidade de entrada zero
Um produto ideal para quem busca qualidade de vida, valorização garantida e condições facilitadas de compra.




Estamos aqui


São duas localizações:
Jabuti - Park Vitória
Gereraú - Solares






